Домокомплект Флет Хаус Плюс 86 м² — збільшена версія популярного Флет Хауса, створена для тих, хто цінує простір, світло та сучасну архітектуру в одному рівні.

ФЛЕТ ХАУС ПЛЮС 86 м2

Характеристики будинку

   До вашої уваги домокомплект, який Ви можете збудувати своїми руками!

Загальна площа86 м2
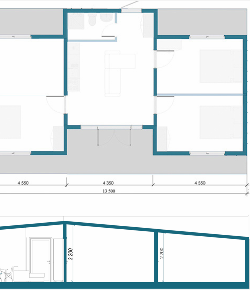
Розмір будинку13500х8000
Кількість поверхів1
Кількість спален 3
Кількість санвузлів1
Ціна $30000

Платформа

  • Дошка стругана камерної сушки січенням 145х45мм, обв’язка платформи – 145х90мм
  • OSB – 12мм та 22мм
  • Сітка від гризунів
  • Супердифузійна мембрана Strotex 1300 (Польща)
  • Пароізоляційна плівка Strotex AL90
  • Бітумно-каучукова мастика Покриття тераси – палубна дошка з хвойних порід 140х30мм
  • Комплект кріпильних матеріалів (метизи тощо)

Стіни

  • Стіни каркасу – дошка стругана камерної сушки січенням 145х45мм
    Пароізоляційна плівка Strotex AL90
  • Супердифузійна мембрана Strotex 1300 (Польща)
    Обрешітка
  • Фальц-настил 0,45мм (Корея) Оздоблення фронтону планкеном хвойних порід (130х20)
  • Комплект кріпильних матеріалів (метизи тощо). 
 
 

Дах

  • Крокв’яний система – дошка стругана камерної сушки січенням 145х45мм Пароізоляційна плівка Strotex AL90
  • Супердифузійна мембрана Strotex 1300 (Польща)
  • Обрешітка
  • Фальц-настил 0,45мм (Корея) Оздоблення софітів планкеном хвойних порід (130х20)
  • Комплект спецпланок
  • Комплект кріпильних матеріалів (метизи тощо)
 

Утеплення

  • Утеплювач: негорючі, теплоізолюючі, гідрофобізовані, звукопоглинаючі базальтові плити IZOVAT щільністю не менше 30кг\м3 товщиною:
  • Підлога – 150мм
  • Стіни – 150мм
  • Дах – 150мм

*За окрему оплату можливе замовлення з додатковою товщиною утеплювача

 

Вікна

  • П’ятикамерний ПФХ профіль 76 (Білий)
  • Подвійне енергозберігаюче скло з напиленням SOLAR
  • Двокамерний склопакет
  • Фурнітура
  • Вхідні двері тераси – ПВХ 76мм

*До комплекту додається стрічка та піна для теплого монтажу віконно- дверних конструкцій
*За додаткову оплату можлива ламінаці конструкцій за вашим побажанням

Додатково

  • П’ятикамерний ПФХ профіль 76 (Білий)
  • Подвійне енергозберігаюче скло з напиленням SOLAR
  • Двокамерний склопакет
  • Фурнітура
  • Вхідні двері тераси – ПВХ 76мм

*До комплекту додається стрічка та піна для теплого монтажу віконно- дверних конструкцій
*За додаткову оплату можлива ламінаці конструкцій за вашим побажанням

ВАРТІСТЬ ПОВНОГО ДОМОКОМПЛЕКТУ

(30 000$)

  • матеріали внутрішніх перестінків та оздоблення не входять до комплекту (планування приміщень мають рекомендаційний характер) 
  • розмір авансового платежу – 70% 
  • вартість декоративно-тіньової перголи – 600$ 
  • вартість додаткової ламінації віконно-дверних блоків – 400$
  •  вартість додаткового утеплення(50мм) стін та даху – 1650$

www.wellmodule.com.ua
+38(098) 453-85-25
ШОУ-РУМ
Київ, вул. Садова, 62, 

Флет Плюс 86 м² — простір, що дарує більше можливостей

Цей будинок — оновлена версія нашого популярного Флет Хаус, у якій дзеркально додано третю секцію. Завдяки цьому площа збільшується до 86 м², а простір стає вдвічі комфортнішим та функціональнішим.

Флет Плюс поєднує стильний сучасний дизайн із практичністю. Мінімалістичний дах, панорамні вікна і чіткі лінії фасаду роблять будинок привабливим і водночас простим у монтажі.

Каркасна технологія будівництва дозволяє швидко зібрати будинок власноруч або з мінімальною допомогою, навіть якщо це ваш перший досвід.

У базовій комплектації ви отримаєте:

  • Всі необхідні конструкційні елементи та кріплення

  • Покрокову інструкцію зі збирання

  • Вільне внутрішнє планування для будь-яких побажань

  • Можливість самостійно вибрати матеріали для оздоблення (вагонка, фанера, імітація брусу тощо)

Фундамент готується окремо — найчастіше використовуються гвинтові палі або бетонні стовпчики. Орієнтовна вартість монтажу фундаменту з 20 паль — від 50 до 70 тис. грн.

Додаткові опції:

  • Ламінація віконних профілів

  • Матеріали для додаткового утеплення

  • Камерна сушка пиломатеріалу для перегородок або антресольної зони

Флет Плюс 86 м² — сучасний, просторий і комфортний дім, який легко адаптується під ваш стиль життя.

Термін виготовлення: 3–4 тижні з моменту замовлення.