Домокомплект Флет Хаус 58 м² — стильний одноповерховий будинок із панорамними вікнами та зручним плануванням, ідеальний для заміського життя або відпочинку.

ДОМОКОМПЛЕКТ ФЛЕТ ХАУС 58 м2

Характеристики будинку

   До вашої уваги домокомплект, який Ви можете збудувати своїми руками!

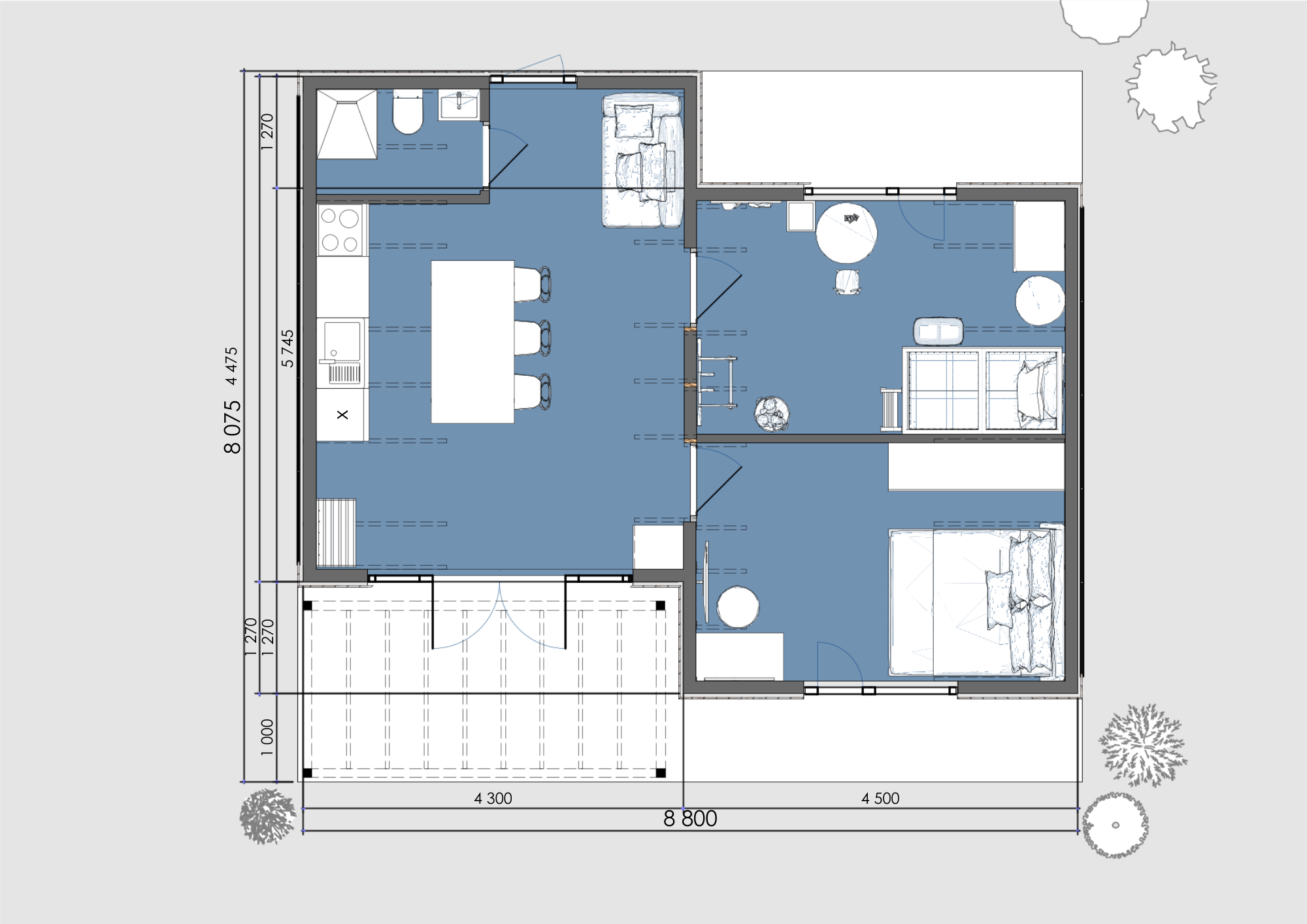
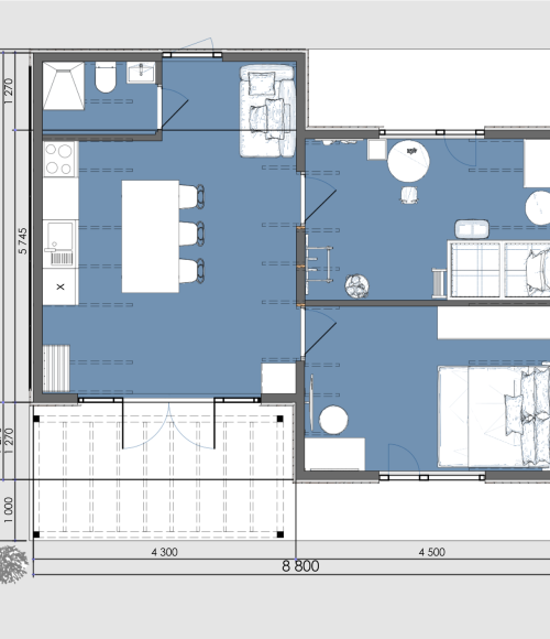
Загальна площа58 м2
Розмір будинку8900х8000
Кількість поверхів1
Кількість спален 2
Кількість санвузлів1
Ціна $21000

Платформа

  • Дошка стругана камерної сушки січенням 145х45мм, обв’язка платформи – 145х90мм
  • OSB – 12мм та 22мм
  • Сітка від гризунів
  • Супердифузійна мембрана Strotex 1300 (Польща)
  • Пароізоляційна плівка Strotex AL90
  • Бітумно-каучукова мастика Покриття тераси – палубна дошка з хвойних порід 140х30мм
  • Комплект кріпильних матеріалів (метизи тощо)

Стіни

  • Стіни каркасу – дошка стругана камерної сушки січенням 145х45мм
    Пароізоляційна плівка Strotex AL90
  • Супердифузійна мембрана Strotex 1300 (Польща)
    Обрешітка
  • Фальц-настил 0,45мм (Корея) Оздоблення фронтону планкеном хвойних порід (130х20)
  • Комплект кріпильних матеріалів (метизи тощо). 
 
 

Дах

  • Крокв’яний система – дошка стругана камерної сушки січенням 145х45мм Пароізоляційна плівка Strotex AL90
  • Супердифузійна мембрана Strotex 1300 (Польща)
  • Обрешітка
  • Фальц-настил 0,45мм (Корея) Оздоблення софітів планкеном хвойних порід (130х20)
  • Комплект спецпланок
  • Комплект кріпильних матеріалів (метизи тощо)
 

Утеплення

  • Утеплювач: негорючі, теплоізолюючі, гідрофобізовані, звукопоглинаючі базальтові плити IZOVAT щільністю не менше 30кг\м3 товщиною:
  • Підлога – 150мм
  • Стіни – 150мм
  • Дах – 150мм

*За окрему оплату можливе замовлення з додатковою товщиною утеплювача

 

Вікна

  • П’ятикамерний ПФХ профіль 76 (Білий)
  • Подвійне енергозберігаюче скло з напиленням SOLAR
  • Двокамерний склопакет
  • Фурнітура
  • Вхідні двері тераси – ПВХ 76мм

*До комплекту додається стрічка та піна для теплого монтажу віконно- дверних конструкцій
*За додаткову оплату можлива ламінаці конструкцій за вашим побажанням

Додатково

  • П’ятикамерний ПФХ профіль 76 (Білий)
  • Подвійне енергозберігаюче скло з напиленням SOLAR
  • Двокамерний склопакет
  • Фурнітура
  • Вхідні двері тераси – ПВХ 76мм

*До комплекту додається стрічка та піна для теплого монтажу віконно- дверних конструкцій
*За додаткову оплату можлива ламінаці конструкцій за вашим побажанням

ВАРТІСТЬ ПОВНОГО ДОМОКОМПЛЕКТУ

(21 000$)

  • матеріали внутрішніх перестінків та оздоблення не входять до комплекту (планування приміщень мають рекомендаційний характер) 
  • розмір авансового платежу – 70% 
  • вартість декоративно-тіньової перголи – 600$ 
  • вартість додаткової ламінації віконно-дверних блоків – 350$
  •  вартість додаткового утеплення(50мм) стін та даху – 1000$

www.wellmodule.com.ua
+38(098) 453-85-25
ШОУ-РУМ
Київ, вул. Садова, 62, 

Флет Хаус 58 м² — наш бестселер серед компактних одноповерхових будинків, створений за запитами клієнтів

Цей дім — вдале поєднання зручності, сучасного дизайну та функціональності. Завдяки мінімалістичному даху, панорамним вікнам і лаконічній формі, він виглядає стильно і водночас не потребує складного монтажу.

Флет Хаус побудований за спрощеною каркасною технологією, що дозволяє швидко та надійно змонтувати його власноруч або з мінімальною допомогою.

Що ви отримаєте в базовій комплектації:

  • Усі необхідні конструкційні елементи та кріплення

  • Покрокову інструкцію зі збирання

  • Вільне внутрішнє планування

  • Можливість самостійного вибору матеріалів для оздоблення (вагонка, фанера, імітація брусу тощо)

Фундамент готується окремо: найчастіше використовуються гвинтові палі або бетонні стовпчики.
Орієнтовна вартість монтажу гвинтового фундаменту з 15 паль — від 40 до 60 тис. грн.


Додаткові опції:

  • Ламінація віконних профілів

  • Матеріали для додаткового утеплення

  • Камерна сушка пиломатеріалу для перегородок або антресольної зони


Хочете більше простору?

Для тих, хто шукає підвищений комфорт, ми пропонуємо модифіковану версію Флет Хаус, із розширеними параметрами, покращеним фасадом та вищим дахом.
Вартість оновленої версії — на $2000 більше, проте її можливості й вигляд приємно вас здивують.


Флет Хаус 58 м² — компактний дім, у якому є все для комфортного життя.
Справжній хіт продажів, який легко адаптується під ваші потреби.

Термін виготовлення: 3–4 тижні з моменту замовлення.