Домокомплект A-FRAME 60 м² — збільшена версія стильного і впізнаваного будинок у формі “А”, який ідеально підходить для заміського відпочинку, оренди або компактного постійного проживання.

А-Фрейм плюс 60 м2

Характеристики будинку

   До вашої уваги домокомплект, який Ви можете збудувати своїми руками!

Загальна площа60 м2
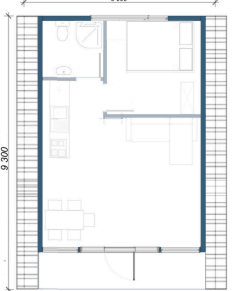
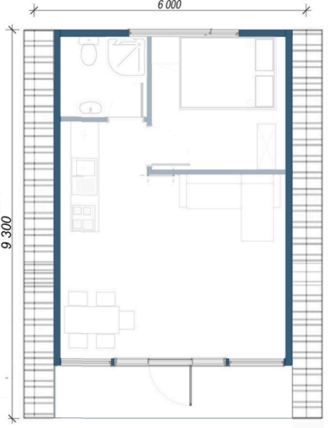
Розмір будинку6000х9300
Кількість поверхів2
Кількість спален 1
Кількість санвузлів1
Ціна $15 000

Платформа

  • Дошка стругана камерної сушки січенням 145х45мм, обв’язка платформи – 145х90мм
  • OSB – 12мм та 22мм
  • Сітка від гризунів
  • Супердифузійна мембрана Strotex 1300 (Польща)
  • Пароізоляційна плівка Strotex AL90
  • Бітумно-каучукова мастика Покриття тераси – палубна дошка з хвойних порід 140х30мм
  • Комплект кріпильних матеріалів (метизи тощо)

Стіни

  • Стіни каркасу – дошка стругана камерної сушки січенням 145х45мм
    Пароізоляційна плівка Strotex AL90
  • Супердифузійна мембрана Strotex 1300 (Польща)
    Обрешітка
  • Фальц-настил 0,45мм (Корея) Оздоблення фронтону планкеном хвойних порід (130х20)
  • Комплект кріпильних матеріалів (метизи тощо). 
 
 

Дах

  • Крокв’яний система – дошка стругана камерної сушки січенням 145х45мм Пароізоляційна плівка Strotex AL90
  • Супердифузійна мембрана Strotex 1300 (Польща)
  • Обрешітка
  • Фальц-настил 0,45мм (Корея) Оздоблення софітів планкеном хвойних порід (130х20)
  • Комплект спецпланок
  • Комплект кріпильних матеріалів (метизи тощо)
 

Утеплення

  • Утеплювач: негорючі, теплоізолюючі, гідрофобізовані, звукопоглинаючі базальтові плити IZOVAT щільністю не менше 30кг\м3 товщиною:
  • Підлога – 150мм
  • Стіни – 150мм
  • Дах – 150мм

*За окрему оплату можливе замовлення з додатковою товщиною утеплювача

 

Вікна

  • П’ятикамерний ПФХ профіль 76 (Білий)
  • Подвійне енергозберігаюче скло з напиленням SOLAR
  • Двокамерний склопакет
  • Фурнітура
  • Вхідні двері тераси – ПВХ 76мм

*До комплекту додається стрічка та піна для теплого монтажу віконно- дверних конструкцій
*За додаткову оплату можлива ламінаці конструкцій за вашим побажанням

Додатково

  • П’ятикамерний ПФХ профіль 76 (Білий)
  • Подвійне енергозберігаюче скло з напиленням SOLAR
  • Двокамерний склопакет
  • Фурнітура
  • Вхідні двері тераси – ПВХ 76мм

*До комплекту додається стрічка та піна для теплого монтажу віконно- дверних конструкцій
*За додаткову оплату можлива ламінаці конструкцій за вашим побажанням

ВАРТІСТЬ ПОВНОГО ДОМОКОМПЛЕКТУ

(15 000$)

  • матеріали внутрішніх перестінків та оздоблення не входять до комплекту (планування приміщень мають рекомендаційний характер) 
  • термін видачі домокомплекту (з моменту оплати авансу) – 21 день розмір авансового платежу – 70%
  •  вартість додаткової ламінації віконно-дверних блоків – 300$
  •  вартість додаткового утеплення(50мм) стін та даху 850$

www.wellmodule.com.ua
+38(098) 453-85-25
ШОУ-РУМ
Київ, вул. Садова, 62

A-FRAME 60 м² — більше простору для спогадів і натхнення

Збільшена версія нашого легендарного A-FRAME — це ще більше світла, повітря та затишку у знайомій з дитинства формі. Архітектура у вигляді літери “А” зберегла свою унікальність, а додаткові квадратні метри дозволили зробити будинок ще зручнішим для відпочинку, роботи чи постійного проживання.

Цей дім ідеально підходить для пари, молодої сім’ї або людей, які цінують простір та атмосферу гармонії з природою.

У комплекті ви отримаєте:

  • Повний набір матеріалів і кріплень

  • Детальну інструкцію для самостійного збирання

  • Панорамні вікна, які наповнюють інтер’єр світлом і створюють відчуття єднання з довкіллям

  • Вільне планування — для максимального врахування ваших побажань

На першому поверсі можна облаштувати кухню-студію, санвузол, вітальню з каміном або додаткову спальню. Мансардна зона стане затишним простором для сну, роботи чи відпочинку.

Фундамент готується окремо — найчастіше це гвинтові палі або бетонні блоки.
Орієнтовна вартість монтажу фундаменту з 18 паль — від 50 до 70 тис. грн.

Додаткові опції за запитом:

  • Ламінація віконних профілів

  • Матеріали для додаткового утеплення

  • Камерна сушка пиломатеріалів для внутрішніх перегородок або антресольної зони

A-FRAME 60 м² — це не просто будинок. Це архітектура з характером, яка створює атмосферу затишку, натхнення та спокою.

Термін постачання: 3–4 тижні з моменту замовлення.